![]() ![]() ![]()  
				 
		         | 
		    
		    	 
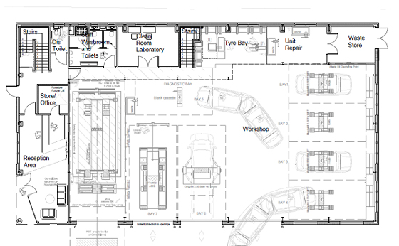
		        VEHICLE SERVICING AND TESTING CENTRE RMKH Ltd Fibonacci-Architects were commissioned to design a new Bosch motor vehicle testing and service centre for Service Plus. The completed new 7000sq.ft facility includes workshops, a double height reception and facilities for staff and customers. The new building raises the profile of this franchise operation allowing for expansion and development of the business.  |