| 
				 
		        
                 
                 
                
                 
				 
		        
  
             | 
		    
		     |   |  
            
		    
		    	 
		        HOTEL 
		        Fishron (Basingstoke) Ltd
  Victoria Road, Basingstoke, Hampshire 
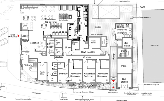
		        A redundant town centre office building was demolished prior to a new 81-Bedroom Premier Inn hotel and restaurant being constructed using a composite frame solution - part steel, part timber - supported from pre-existing foundations.  The project was completed in summer 2015.
  
		        "Fibonacci-Architects excelled in particularly trying conditions to secure Fishron (Basingstoke) Ltd planning approval on this challenging urban site.  The BREEAM Very Good rated building was technically demanding utilising foundation elements of an earlier structure with new composite construction comprising steel framing at ground and first floor levels and timber framing for the upper floors.  Another successfully completed project on time and within budget from Fibonacci's dedicated team with whom we have worked successfully with for many years on a number of commercial and residential projects."
  
				Malcolm McPhail 
				Managing Director 
				Lamron Estates
				
				 
			 |